Apple Stores
Location:
Europe
Scope:
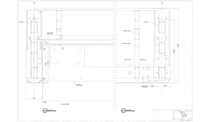
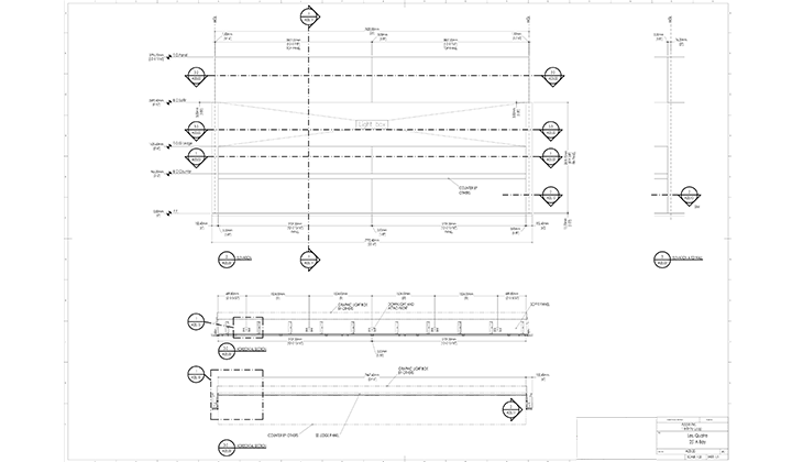
Axium Global created detailed construction and installation drawings for several stores across Europe. Working closely with the installation partner, we contributed to a carefully planned, structural sub-structure, which underpins the arrangement and layout of ceiling and floor fixtures, fittings and internal brushed steel wall panels. Our work formed an integral part of the European store upgrade that features in many leading malls across major cities.




